40x60x14 Metal Building for Sale in Tennessee
DETAILS:
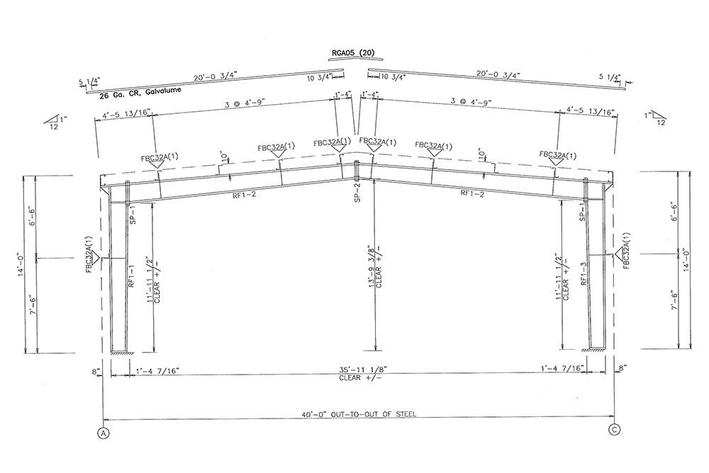
40x60x14 Never Erected Steel Building. Comes with the following framed openings: (3) 14×12 and (1) 3070. Tennessee load compliant.
Call us at 1-800-292-0111 for more information.
Mention Listing#TN1286



